Attività in vendita

Bisceglie, via luigi d'angiò
€ 58.000
110 Mq 110 Mq
2 bagni 2 bagni

Attività in vendita

Bisceglie, via luigi d'angiò

Descrizione annuncio

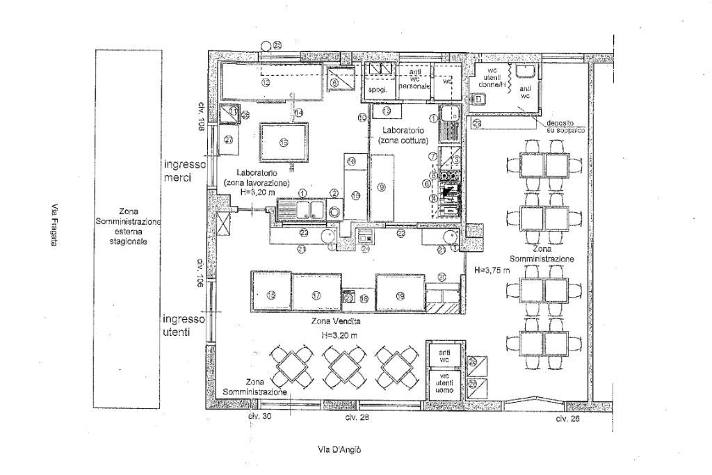
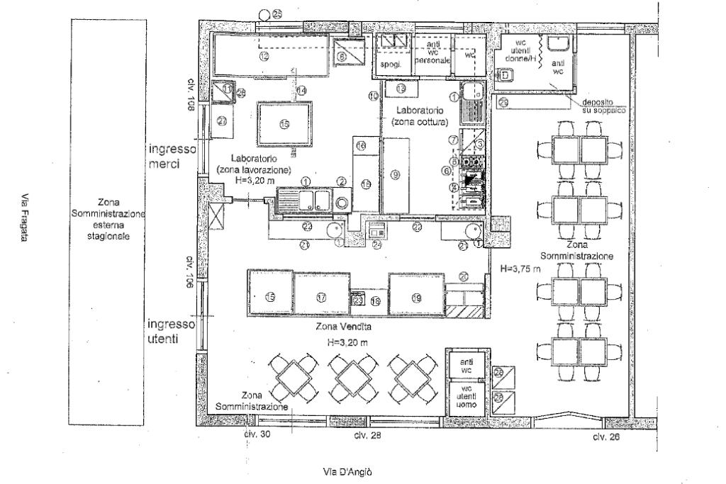
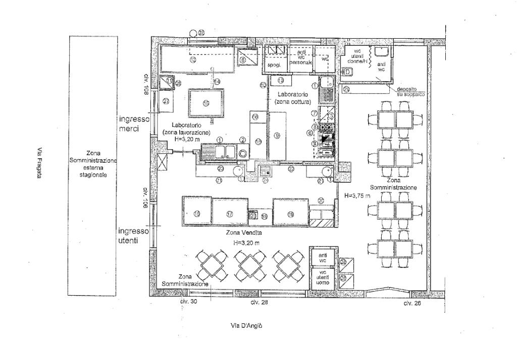
Nella zona Seminario, proponiamo in vendita una attività commerciale di pescheria, ristorazione take away e consumazione sul posto, corredata di tutte le attezzature ed utensilerie è ideale per chi desidera avviare o espandere la propria attività.

Situato al piano terra e con una esposizone angolare, questo spazio di 110 mq offre un ambiente versatile e funzionale con 5 vetrine, 3 servizi ed un'area esterna creata su di una pedana in ferro parzialmente recintata per dare privacy alla clientela e dotata di tenda da sole elettrica.

La disposizione interna comprende un'ambiente con la zona vendita, una sala per la somministrazione dei cibi, un laboratorio per la lavorazione e conservazione dei prodotti, ed un'altro per la cottura degli stessi, tutto ciò garantisce comfort e praticità sia per il personale che per i clienti.

L'immobile è dotato di un sistema di aria condizionata, assicurando un clima piacevole durante tutto l'anno.

La posizione strategica in una zona ben servita e facilmente accessibile la rende un'opportunità interessante da non perdere per chi cerca un locale pronto all'uso.

Mostra tutto

Nelle vicinanze

Trasporto pubblico Trasporto pubblico
stazione di Bisceglie
stazione di Bisceglie
1,0 Km
Ricariche auto elettriche Ricariche auto elettriche
Eneldrive Bisceglie Stazione
950 m
Eneldrive Bisceglie Lungomare
1,4 Km
Scuole Scuole
Scuola Secondaria di Primo Grado Monterisi
180 m
Scuole
360 m
Scuola Primaria Don Tonino Bello
370 m
Istituto Tecnico Commerciale Statale Dell Olio
480 m
Liceo Scientifico Statale Leonardo da Vinci
500 m
Farmacia Farmacia
Farmacia
120 m
Colasuonno-Spagnoletta
660 m
Ospedali Ospedali
Casa della Divina Provvidenza
1,1 Km
Ospedale V. Emanuele II
1,9 Km
Pronto Soccorso Ospedale V. Emanuele II
1,9 Km
Supermercati Supermercati
DESPAR
160 m
Primo Prezzo
290 m
DOK
410 m
Euro Spin
690 m
Penny
1,2 Km
Negozi Negozi
Racconti di Grano
380 m
Panificio_Adriatico
500 m
Santamadonna
560 m
Rameli Outlet
1,1 Km
Bar Bar
Glam'House
490 m
Tortuga
840 m
Barz8
860 m
il Caicco
870 m
Ristoranti Ristoranti
Pizzeria Da Gino
90 m
Pizzeria Antipasteria L'Altro Buco
130 m
A Casa Mia
250 m
La Taverna del Duca
480 m
Ilrestomancia
490 m
Mostra tutto

Caratteristiche

Rif.:
61147966
Piano:
Terra di 4
Totale piani:
4
Condizionamento:
Autonomo
Ascensore:
No
Riscaldamento:
Assente
Mostra tutto
Prezzo Prezzo
€ 58.000
Rata mutuo Rata mutuo
€ 277 / mese
Proponi il tuo prezzoProponi il tuo prezzo

Classe Energetica

Questo immobile è esente da classe energetica
Riscaldamento:
Assente

Ti interessa visionare l'immobile?

Fissa un appuntamento  Fissa un appuntamento

Richiedi informazioni

Clicca su Leggi per aprire l'informativa
* Questi campi sono obbligatori

Calcola il tuo mutuo

Semplice e senza impegno
Anticipo

( % )
Mutuo

( % )

pochi semplici passi

inserisci i tuoi dati
Questionario completato
Grazie per aver richiesto un appuntamento senza impegno con un nostro Consulente del Credito e Assicurativo.

Hai inserito correttamente tutti i dati necessari e a breve riceverai una e-mail con un link da convalidare per inviare i tuoi dati.
Affiliato
Studio Umberto I D.I.
Corso Umberto, 153 76011 Bisceglie (BT)

Il nostro staff


  • Giovanni Lupano
    Affiliato

  • Vincenza Todisco
    Coordinatrice
Corso Umberto, 153 76011 Bisceglie (BT)
Zona: Bisceglie zona Seminario-San Francesco
Mostra su mappa
Orari: lunedì-venerdì 9.00-13.00 16.30-21.00; sabato 9.00-13.00; domenica su appuntamento.
Affiliato
Studio Umberto I D.I.
Corso Umberto, 153 76011 Bisceglie (BT)

2026 Tecnocasa Franchising S.p.A. - P. IVA 08365160152 - Via Monte Bianco 60/A 20089 Rozzano (MI). Ogni agenzia ha un proprio titolare ed è autonoma. Privacy policy | Policy utilizzo | Cookie policy